Construction Field Offices for Mascaro Construction
Project Details
Location:
Lancaster, OH
Square Footage:
7,600
Number of Modules:
11
Completion Date:
December 23, 2023
Modular Office Space for an Expanding Jobsite
Triumph Modular swiftly responded to Mascaro’s evolving project needs at an industrial manufacturing facility undergoing renovations. Initially, the company provided a modest setup consisting of two 10′ x 44′ and one 8′ x 32′ mobile construction offices for Mascaro’s team. However, as the project scope expanded with the award of phase 2, Triumph seamlessly upgraded the construction field offices to accommodate growing demands.
Turnkey Setup and Rapid Delivery
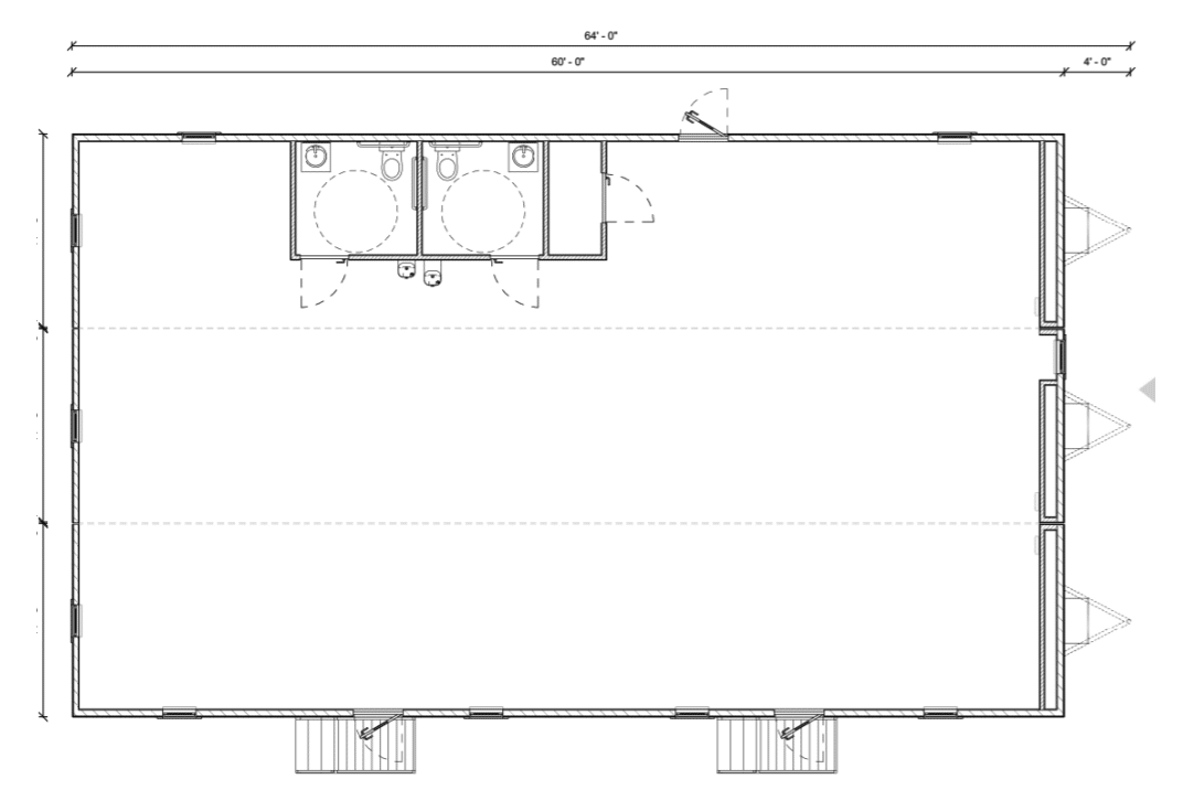
The expanded setup included two 24′ x 64′ modular buildings, a 3-piece BLOCS™ modular complex, two 12′ x 64′, a 10′ x 44′, and a 12′ x 60′ mobile office. This comprehensive arrangement provided ample space for Mascaro’s growing team and created dedicated areas for engineering, construction, and client personnel.
To enhance functionality, Triumph went above and beyond by equipping all units with fresh water and wastewater holding tanks. Mascaro also leased several Triumph Modular Solutions packages, including Business Office and Business Bistro setups, to create a fully functional temporary jobsite office campus.
Triumph’s efficiency shone through in their delivery and setup process. Within just two weeks, all construction field office trailers were in place, forming a cohesive mini-campus without requiring extensive site work. The installation process included blocking, leveling, setting with tie-downs, and vinyl skirting.
Results and Client Feedback
As this was Mascaro’s first experience working with Triumph Modular, the company was particularly impressed by the bright, clean, and efficient units, as well as the exceptional customer service provided. This successful collaboration not only met Mascaro’s immediate needs but also set the stage for potential future partnerships.
More Projects
Check out these examples of Triumph’s modular projects and premium buildings.
Triumph Modular delivers high-quality modular buildings for schools, businesses, and public agencies across the Northeast, Mid-Atlantic, and Midwest. Whether you’re expanding classroom space, adding a jobsite office, or planning a long-term facility, our modular solutions provide speed, flexibility, and code-compliant performance.


